UM CONCEITO RESIDENCIAL EXCLUSIVO NO CENTRO DA
CIDADE
DE
BRAGA
Casal das Flores aliam o luxo ao essencial: a natureza e a cidade.
9 moradias térreas com arquitetura sofisticada, construídas com materiais de elevada qualidade e acabamentos de excelência, que garantem conforto e durabilidade.
Aqui, tem tudo o que precisa por perto: escolas públicas e privadas de referência, comércio, serviços e espaços verdes, que tornam a rotina mais simples e a vida mais completa.
Um investimento sólido, pensado para quem valoriza qualidade e bem-estar.


PRINCIPAIS
CARACTERÍSTICAS
suitE master com closet
Um refúgio acolhedor, com um closet elegante e espaçoso.
jardim com piscina
Um convite à natureza, com piscina para todos os momentos.
painéis fotovoltaicos
Aliamos o conforto à responsabilidade ambiental.
cozinha open space
Equipada com eletrodomésticos Bosch de grande qualidade e durabilidade.
garagem
Com capacidade para três carros e espaço de arrumação.
domótica
Controlo à distância de iluminação, climatização e segurança.
Ceramic Design Vase
$32,99

Interior em open space
Harmonia entre a vida social e pessoal, ideal para receber, conviver e também desfrutar de momentos de serenidade.
Piso térreo
As principais áreas sociais e privadas estão dispostas no piso térreo, garantindo uma vivência prática e harmoniosa.
Piso inferior
Aqui encontra uma ampla sala multiusos personalizável - um verdadeiro espaço em branco para projetar à sua imagem.
O limite é a sua imaginação!



SALA MULTIUSOS
No piso inferior e com acesso direto ao exterior, esta sala versátil adapta-se ao seu estilo de vida - seja para momentos de lazer, descanso ou criatividade.
Imagine uma sala de cinema com garrafeira, ou um espaço de leitura junto à sala de jogos dos seus filhos.
Uma verdadeira zona de escape ao ritmo frenético do quotidiano.

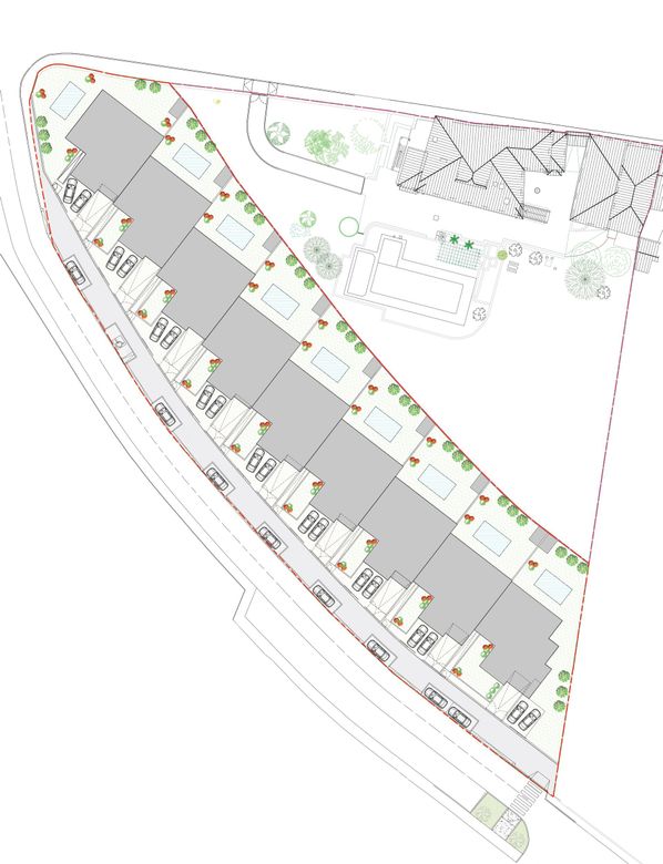
LOTEAMENTO
CASAL DAS FLORES
| Nº | LOTE | IMPLANTAÇÃO | GARAGEM | HABITAÇÃO | CONSTRUÇÃO |
|---|---|---|---|---|---|
| L1 | 579.00 | 191.00 | 84.50 | 217.90 | 337 |
| L2 | 453.00 | 193.00 | 77.00 | 223.00 | 345 |
| L3 | 456.00 | 193.00 | 77.00 | 223.00 | 345 |
| L4 | 458.00 | 193.00 | 77.00 | 223.00 | 362 |
| L5 | 462.00 | 193.00 | 77.00 | 223.00 | 362 |
| L6 | 466.00 | 193.00 | 77.00 | 223.00 | 362 |
| L7 | 454.00 | 193.00 | 77.00 | 223.00 | 362 |
| L8 | 444.00 | 193.00 | 77.00 | 223.00 | 362 |
| L9 | 523.00 | 193.00 | 77.00 | 223.00 | 362 |
ÁREAS m 2
O empreendimento constitui um espaço residencial urbano de excelência, localizado às portas de uma das entradas principais do sobejamente conhecido Parque das Sete Fontes, que será um ex-líbris da cidade, potenciando uma das zonas de maior valorização imobiliária da cidade, num perfeito equilíbrio entre conforto, comodidade e lazer.
Destaca-se a proximidade à circular urbana;
A proximidade (a pé) ao centro histórico da cidade, a escolas públicas e privadas com destaque no ranking nacional;
Nas imediações do Hospital Central de Braga, da Universidade do Minho e de um centro comercial de referência.
1 - COLÉGIO D. DIOGO DE SOUSA
2 - COLÉGIO LEONARDO DA VINCI
3 - ESCOLA SÁ DE MIRANDA
4 - COLÉGIO TERESIANO
5 - CONSERVATÓRIO DE MÚSICA C. GULBENKIANl
6 - SHOPPING CENTER BRAGAPARQUE
7 - UNIVERSIDADE DO MINHO
8 - HOSPITAL
9 - PARQUE DAS 7 FONTES (brevemente)
10 - CENTRO DE NANOTECNOLOGIA
11 - COMPLEXO DESPORTIVO
12 - ARCADA / AV. CENTRAL
13 - CENTRO HISTÓRICO
BRAGA
Com mais de dois mil anos de história, esta é a terceira maior cidade do país e um verdadeiro exemplo de equilíbrio entre tradição e inovação.
Alia o património e à pulsante vida universitária. Integra um ecossistema tecnológico de referência, com destaque para o Instituto de Nanotecnologia (INL), ao mesmo tempo que conta uma história em cada monumento.
Apenas a 40 minutos do Aeroporto do Porto, Braga oferece uma vasta programação cultural, gastronomia rica e autêntica, e uma rede de ciclovias que promove a mobilidade sustentável.
De destacar a proximidade das moradias a um dos tesouros naturais da cidade: o Parque das Sete Fontes. Este espaço verde está em franco crescimento, e promete tornar-se um verdadeiro ex-líbris da cidade.
Acredite nos seus sonhos, nós também acreditamos!
A nossa história começou a ser escrita desde o momento em que nascemos, cada momento de sucesso ou insucesso contribuiu para construir o que somos hoje e foi em 1988 que a Vilaminho deu os seus primeiros passos, com o nascimento da primeira empresa do setor imobiliário.
Trinta anos depois e orientado por três gerações, capazes de garantir a sua evolução e crescimento contínuo, o Grupo Vilaminho apresenta empreendimentos imobiliários por todo o país, em cidades como Aveiro, Braga, Gondomar, Lisboa, Elvas, Gaia, Portimão e ainda no Brasil.
Avô, Pai e Filho dirigem, agora, com a mesma paixão com que começaram, o grupo que está sempre a seu lado e que projeta tudo a pensar em si e no seu futuro. Podíamos ser uma típica empresa familiar no setor imobiliário, mas não o somos, pois temos a missão de criar, continuamente, elementos de diferenciação nos projetos que desenvolvemos, unindo competências e esforços para encontrar soluções de qualidade que acompanham as tendências arquitetónicas e tecnológicas, acreditando apenas na determinação de cada cliente para alcançar cada um dos seus sonhos.
Agende uma Visita
Contate-nos
Obrigado por entrar em contacto.
A sua mensagem foi recebida e será respondida brevemente.
Desculpe, houve um erro ao enviar a sua mensagem.
Tente novamente mais tarde.

O seu refúgio no centro de Braga














